
【大师创作营】是CIID海南专委2016年的又一大新动作。【大师创作营】旨在整合资源,为设计师、建材商家搭建合作共赢的平台,一同抱团发展。【大师创作营】的设计前辈们会不留余力的帮助年轻设计师成长,将海南设计传承下去。同时,【大师创作营】也将进一步促进设计师与建材商之间的紧密合作,尽量消除建材商对设计师的偏见,从而达到合作共赢的目的。

富元
休闲度假风格设计师,擅长休闲度假风格及旅游地产设计。
IEED国际生态环境设计联盟(大中华区)三亚市执委会主席
2002年就职于新加坡贝尔高林景观设计公司
2004年回国,于三亚创立【富元设计公司】
2010年在境外成立【塞舌尔富元空间艺术设计有限公司】
荣誉奖项
荣获2006年度亚洲杰出休闲度假风格设计大师称号
荣获2008年度室内设计精英奖
荣获2011年度中国人居范例最佳设计方案-金奖
荣获2012年度中国国际景观规划设计大会-银奖
荣获第七届中国国际室内设计双年展-优秀奖
荣获2015年度优秀别墅设计奖
荣获2015年第十八届中国室内设计大奖赛入选奖
代表作品
三亚“凤凰水城”度假别墅设计
三亚“半岛龙湾”酒店设计
三亚“同心家园”旅游地产设计
三亚“希尔顿大酒店”室外园林景观深化设计
海口“荣域”西班牙庄园景观设计
海口“阳光西海岸”园林景观设计
齐齐哈尔楼盘销售会所设计
河北“幸福·荷语墅”别墅样板间设计
......
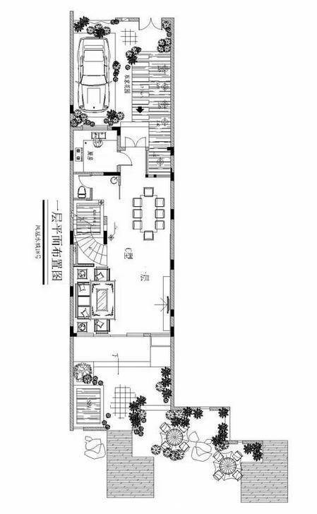
项目地点:三亚
设计师:富元
设计说明:
利用原始的自然材料:自然面毛石,传统的水磨石地面。自然椰壳的运用。表达新都市生活的东方禅意风情。




空间的流动与分隔,流动则为一室,分隔则分几个功能空间,空间中总能让人静静地思考,禅意无穷。“菩提本无树,明镜亦非台;本来无一物,何处惹尘埃?”






玄关处的山石水潭,客厅的黑镜喷花,餐厅的整支毛竹装饰墙面,卧室的画艺背景。线条清晰,布置优雅。设计师灵活的运用海南当地材料,在传统日式的基础上增加了地域元素。藤艺、瓷器、陶艺、字画、布艺的合理搭配增加了空间温馨、舒适、精致唯美之感。